カタログ
請求
モデルハウス
を見る
非住宅建築
MODEL HOUSE

展示場・モデルハウス

広島市佐伯区|こころ展示場

【最新】モデルハウス|IDEA 深く、穏やかに、心を満たす。 I5-9

4.5mのワイドリビングがつくる心地よい空間
待望のモデルハウス 5月16日オープン

IDEAがご提案するのは、
構造美と設計自由度が生む、洗練された住まい。

4.5mのワイドリビングの伸びやかな空間は、
心にもゆとりをもたらし、本当に価値あるものだけを選び取る、
シンプルで上質な暮らしを叶えます。

深く、穏やかに、心を満たす。

リビング
ワイドリビングを彩るタイルの自然な質感。その豊かな表情が、LDK に心地よい一体感と存在感を与えます。
キッチン
上質なインテリアに溶け込むダークカラーの二の字型キッチンを採用。高いデザイン性と効率的な動線を両立しました。
リビング(夜)
内外を繋ぐ下がり天井と深い軒が光を優しくコントロール。夜は間接照明が陰影を深める、情緒豊かなリビング。
テラス
玄関から続く軒下テラス。内と外を繋ぐ中間領域は、心地よい光と風を感じるアウターリビングとして暮らしを彩ります。

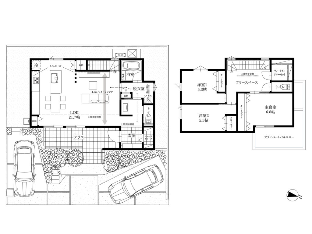
floor plan

延床面積 / 118.71㎡(35.91坪) 1階 / 60.45㎡(18.28坪) 2階 / 58.26㎡(17.62坪)※確認申請面積
光と影が織りなす極上のワイドリビング

※当ページに記載のパースは図面に基づくイメージです。実際とは異なる場合がございます。

ACCESS

開催中のイベント

会場
こころ展示場/広島市佐伯区石内北3丁目
MAP
日時
2026年5月16日 オープン予定
初回WEB来場予約の特典
Web来場予約&Webアンケート回答後のご来場で、Amazonギフトカード3,000円分プレゼント!
Web予約は何度でも可能ですが、特典は1回限りとさせていただきます。
スマートフォンで受信可能なメールアドレスをご入力ください。
㈱トータテハウジング主催キャンペーンです。
Amazon、Amazon.co.jp およびそれらのロゴは、Amazon.com, Inc. またはその関連会社の商標です。
来場予約時の注意事項
・営業日の前日までにお申し込みください。
・当日のご予約の場合は、下記お電話番号までお問合せください。
・ご予約いただいてもお時間の調整をお願いする場合がございます。
お電話でのご予約・お問い合わせ
TEL. 0120-122-435
株式会社トータテハウジング
定休日:水曜日、木曜日
営業時間:10:00〜18:00
MODELHOUSE
来場予約はこちら
ご予約フォーム

広島県で注文住宅をお考えの方は
お気軽にお問い合わせください。

お電話でのお問い合わせはこちら
082-247-3133
定休日:水曜・木曜 営業時間:10:00~17:00