あたたかさも、広がり感も。毎日がラクになる心地よさ
1階の天井高2.6m。床面積とのバランスを白銀比で整えることで、圧迫感を抑え面積以上の開放感を感じられる設計です。
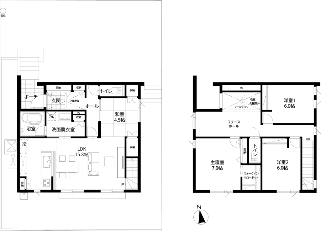
また、2階のフリーホールは「集中したい作業・趣味・ちょっとしたリフレッシュ」など、過ごし方を固定せず、気分に合わせて居場所を変えられる、家での過ごし方を愉しめる空間。ぜひモデルハウスで体感ください。
また、2階のフリーホールは「集中したい作業・趣味・ちょっとしたリフレッシュ」など、過ごし方を固定せず、気分に合わせて居場所を変えられる、家での過ごし方を愉しめる空間。ぜひモデルハウスで体感ください。


