家族時間をのびのび暮らせる空間設計
開放感のあるリビングで過ごす時間も、食卓を囲む時間もゆったり心地よく。家族が集まっても窮屈になりにくく、「家に帰りたい」と思えるくつろぎ空間です。
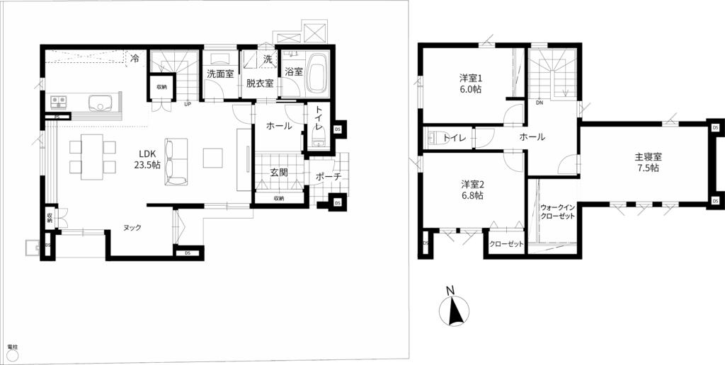
リビング横のヌックは、半個室のように落ち着けて、家族の気配も感じられる場所。ダイニング横のカウンターは勉強やちょっとした作業に使いやすく、同じ空間の中でそれぞれが心地よく過ごせます。
リビング横のヌックは、半個室のように落ち着けて、家族の気配も感じられる場所。ダイニング横のカウンターは勉強やちょっとした作業に使いやすく、同じ空間の中でそれぞれが心地よく過ごせます。


