
落ち着きと開放感が両立した住まい|ウエストヒルズ古江No.8
土地価格
24,490,000円
建物価格(参考):2180万円(税抜)
所在地:広島県広島市西区古江上2丁目
敷地面積:135.08㎡
交通:広島電鉄宮島線「古江」駅 徒歩11分~13分
所在地:広島県広島市西区古江上2丁目
敷地面積:135.08㎡
交通:広島電鉄宮島線「古江」駅 徒歩11分~13分
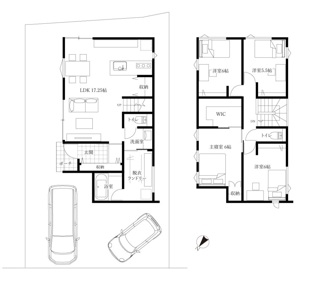
FLOOR PLAN
Features
※掲載の画像やパースはイメージのため実際とは異なります。家具・調度品等は参考価格に含まれません。
※建物参考価格は、上記性能での本体価格です。(外構・地盤補強・屋外給排水・委託費用等の別途工事、諸経費は含まれません。)詳しくは担当者へお問い合わせください。
分譲地
No.8
土地価格
24,490,000円
地積:135.08㎡
坪数:40.86坪
方位:北西
坪数:40.86坪
方位:北西
区画図
周辺環境
教育
・広島市立古田小学校 徒歩4分
・広島市立古田中学校 徒歩9分
・古田保育園 徒歩17分
・古田幼稚園 徒歩9分
・広島市立古田中学校 徒歩9分
・古田保育園 徒歩17分
・古田幼稚園 徒歩9分
交通
・広島電鉄宮島線「古江」駅 徒歩11分
・広島電鉄「田方」バス停 徒歩5分
・広島電鉄「田方」バス停 徒歩5分
生活利便
・アバンセ古江店 徒歩13分(車で3~4分)
・ローソン広島田方橋店 徒歩6分
・ジアウトレット広島 車で8分
・アルパーク 車で6分
・ローソン広島田方橋店 徒歩6分
・ジアウトレット広島 車で8分
・アルパーク 車で6分
その他
・古江駅前内科 徒歩11分
・広島庚午郵便局 徒歩12分
・広島庚午郵便局 徒歩12分
物件概要
| 名称 | 土地情報 |ウエストヒルズ古江【6区画】 |
|---|---|
| 所在地 | 広島県広島市西区古江上2丁目 |
| 交通 | 広島電鉄宮島線「古江」駅 徒歩11分 |
| 敷地面積 | 134.99m2~211.58m2 |
| 土地価格 | 24,490,000円 |
| 販売区画 | 6区画 |
| 地目 | 宅地 |
| 用途地域 | 第一種住居地域 |
| 建ぺい率 | 60% |
| 容積率 | 200% |
| 現状 | 造成中 |
| 道路 | 6m、アスファルト舗装 |
| 設備 | 公営水道、都市ガス、中国電力 |
| 備考 | 2026年5月造成完成予定 |
| 取引形態 | 売主 |
| 売主・仲介・施工 | 売主・施工:(株)トータテハウジング 広島市中区千田町2丁目5番44号 国土交通大臣(特-5)第20228号 広島県知事(12)第4978号 |
※この土地は土地売買契約締結後3ヶ月以内に、株式会社トータテハウジングと建築請負契約を締結することを条件に販売します。期限内に住宅建築をしない事が確定した時、または住宅請負契約が成立しなかった場合は土地売買契約は白紙となり受領した金額は全額お返しします。(契約書に添付した印紙を除く)
見学予約について
※この掲載情報は予告なく変更となる場合がございます。
| 初回WEB来場予約の特典 | Web来場予約&Webアンケート回答後のご来場で、Amazonギフトカード3,000円分プレゼント! Web予約は何度でも可能ですが、特典は1回限りとさせていただきます。 スマートフォンで受信可能なメールアドレスをご入力ください。 ㈱トータテハウジング主催キャンペーンです。 Amazon、Amazon.co.jp およびそれらのロゴは、Amazon.com, Inc. またはその関連会社の商標です。 |
|---|---|
| 来場予約時の注意事項 | ・2日前までにお申し込みください。 ・2日以内のご予約の場合は、下記お電話番号までお問合せください。 ・ご予約いただいてもお時間の調整をお願いする場合がございます。 |
| お電話でのご予約 / お問い合わせ |
TEL:0120-334-632 吉島住宅展示場 定休日:水曜日、木曜日 営業時間:10:00~18:00 |
更新日:2026年05月27日
