
玄関クローク直通、30坪を賢く使う2WAYの家|セントラルシティこころI10-22
土地価格
2157.9万円
建物価格(参考):2180万円(税抜)
所在地:広島市佐伯区石内北3丁目5011-50 他
敷地面積:169.87㎡(51.39坪)
交通:広電バス「石内北小学校前」徒歩約5分
所在地:広島市佐伯区石内北3丁目5011-50 他
敷地面積:169.87㎡(51.39坪)
交通:広電バス「石内北小学校前」徒歩約5分
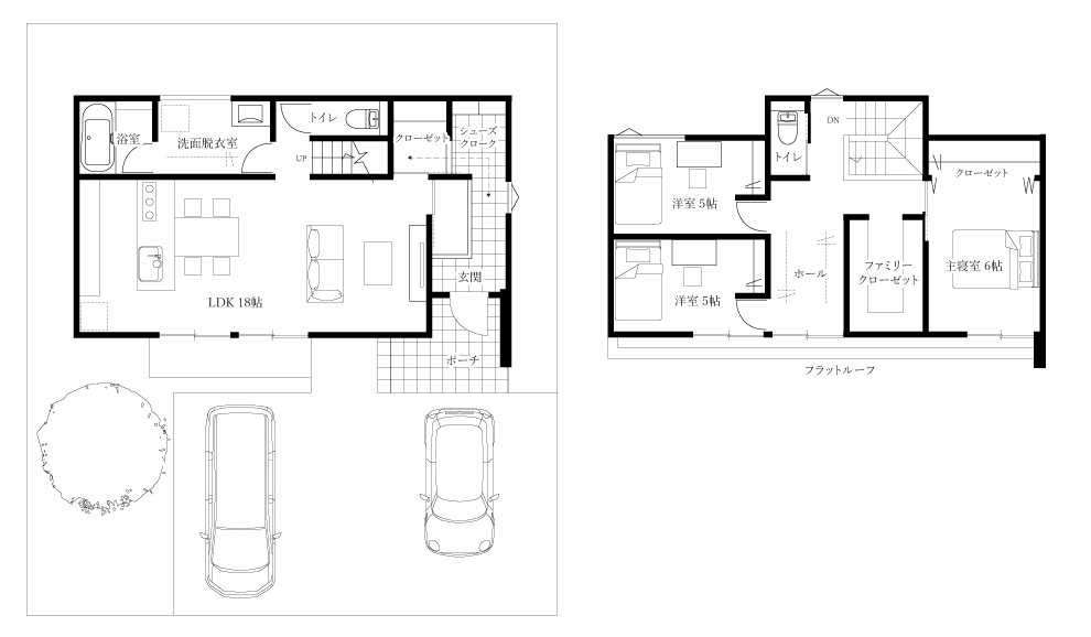
FLOOR PLAN
Features
※掲載の画像やパースはイメージのため実際とは異なります。家具・調度品等は参考価格に含まれません。
※建物参考価格は、上記性能での本体価格です。(外構・地盤補強・屋外給排水・委託費用等の別途工事、諸経費は含まれません。)詳しくは担当者へお問い合わせください。
分譲地
I10-22
土地価格
2157.9万円
地積:169.87㎡
坪数:51.39坪
坪数:51.39坪
周辺環境
教育
・広島市立石内北小学校 徒歩4分
・広島市立大塚中学校 徒歩22分
・こころはるか保育園まで徒歩15分
・ほうりんこころ幼稚園まで徒歩16分
・鷗州塾大塚校まで車で6分
・田中学習塾こころ校まで徒歩12分
・広島市立大塚中学校 徒歩22分
・こころはるか保育園まで徒歩15分
・ほうりんこころ幼稚園まで徒歩16分
・鷗州塾大塚校まで車で6分
・田中学習塾こころ校まで徒歩12分
交通
・(広電)石内北小学校前バス停 徒歩6分
・高速4号線を利用して紙屋町まで車で約15分
・JR横川駅まで直通路線バスで約18分
・紙屋町バスセンターまで直通路線バスで約26分
・高速4号線を利用して紙屋町まで車で約15分
・JR横川駅まで直通路線バスで約18分
・紙屋町バスセンターまで直通路線バスで約26分
生活利便
・セブンイレブン(セントラルシティ店)徒歩7分
・フレスポ西風新都 徒歩15分
・ゆめビル(クリニックビル)まで車で4分
・広島銀行西風新都支店まで徒歩14分
・広島信用金庫西風新都支店まで車で4分
・フレスポ西風新都 徒歩15分
・ゆめビル(クリニックビル)まで車で4分
・広島銀行西風新都支店まで徒歩14分
・広島信用金庫西風新都支店まで車で4分
物件概要
| 名称 | セントラルシティこころI10-22 |
|---|---|
| 所在地 | 広島市佐伯区石内北3丁目5011-50 他 |
| 交通 | 広電バス「石内北小学校前」徒歩約5分 |
| 敷地面積 | 169.87㎡ |
| 土地価格 | 2157.9万円 |
| 販売区画 | 1区画 |
| 地目 | 宅地 |
| 用途地域 | 第一種低層住居専用地域 |
| 建ぺい率 | 50% |
| 容積率 | 100% |
| 現状 | 更地 |
| 道路 | 6m |
| 設備 | 公営水道、都市ガス、公共下水 |
| 備考 | - |
| 取引形態 | 売主・販売代理(※I4街区) |
| 売主・仲介・施工 | 売主・販売代理(※I4街区)(株)トータテハウジング 広島市中区千田町2丁目5番44号 国土交通大臣(特-5)第20228号 広島県知事(12)第4978号 売主(※I4街区):西広島開発(株) 広島市中区国泰寺町2丁目4番7号 広島県知事(14)第3269号 |
※この土地は土地売買契約締結後3ヶ月以内に、株式会社トータテハウジングと建築請負契約を締結することを条件に販売します。期限内に住宅建築をしない事が確定した時、または住宅請負契約が成立しなかった場合は土地売買契約は白紙となり受領した金額は全額お返しします。(契約書に貼付した印紙を除く)
見学予約について
※この掲載情報は予告なく変更となる場合がございます。
| 初回WEB来場予約の特典 | Web来場予約&Webアンケート回答後のご来場で、Amazonギフトカード3,000円分プレゼント! Web予約は何度でも可能ですが、特典は1回限りとさせていただきます。 スマートフォンで受信可能なメールアドレスをご入力ください。 ㈱トータテハウジング主催キャンペーンです。 Amazon、Amazon.co.jp およびそれらのロゴは、Amazon.com, Inc. またはその関連会社の商標です。 |
|---|---|
| 来場予約時の注意事項 | ・2日前までにお申し込みください。 ・2日以内のご予約の場合は、下記お電話番号までお問合せください。 ・ご予約いただいてもお時間の調整をお願いする場合がございます。 |
| お電話でのご予約 / お問い合わせ |
TEL:0120-122-435 セントラルシティこころ センターハウス 定休日:水曜・木曜 営業時間:10:00~17:00 |
更新日:2026年05月27日
