
都市型住宅の模範解答|山本9丁目No.2
土地価格
20,100,000円
建物価格(参考):21,800,000円(税抜)
所在地:広島県広島市安佐南区山本9丁目755番他
敷地面積:130.34㎡
交通:広島交通「南下安」バス停 徒歩12分
所在地:広島県広島市安佐南区山本9丁目755番他
敷地面積:130.34㎡
交通:広島交通「南下安」バス停 徒歩12分
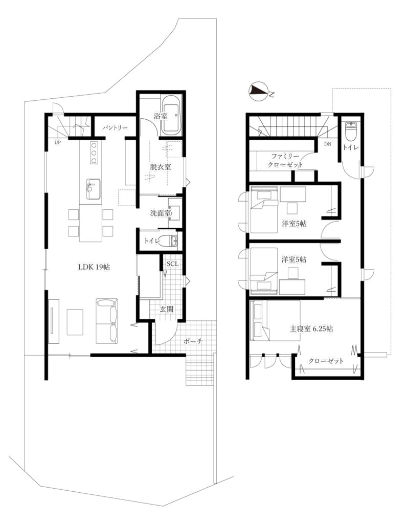
FLOOR PLAN
Features
※掲載の画像やパースはイメージのため実際とは異なります。家具・調度品等は参考価格に含まれません。
※建物参考価格は、上記性能での本体価格です。(外構・地盤補強・屋外給排水・委託費用等の別途工事、諸経費は含まれません。)詳しくは担当者へお問い合わせください。
分譲地
土地情報 |山本9丁目
土地価格
No.2
土地価格
20,100,000円
地積:130.34㎡
坪数:39.42坪
坪数:39.42坪
周辺環境
教育
・山本小学校 徒歩11分
・祇園中学校 徒歩9分
・それいゆやまもと保育園 徒歩8分
・こども認定くすのき 徒歩11分
・市立山本幼稚園 徒歩11分
・祇園中学校 徒歩9分
・それいゆやまもと保育園 徒歩8分
・こども認定くすのき 徒歩11分
・市立山本幼稚園 徒歩11分
交通
・広島交通「南下安」バス停 徒歩12分
・広島交通「山本7丁目」バス停 徒歩11分
・JR可部線「下祗園駅」 徒歩20分
・広島交通「山本7丁目」バス停 徒歩11分
・JR可部線「下祗園駅」 徒歩20分
生活利便
・マックスバリュ祇園店 徒歩9分
・フレスタ東山本店 徒歩10分
・マルショク山本店 徒歩12分
・イオンモール広島祇園 徒歩15分
・フレスタ東山本店 徒歩10分
・マルショク山本店 徒歩12分
・イオンモール広島祇園 徒歩15分
その他
・山本郵便局 徒歩13分
・JA広島市祇園支店 徒歩11分
・クリニックモール祇園 徒歩13分
・武田山医院 徒歩6分
・山本第五公園 徒歩10分
・JA広島市祇園支店 徒歩11分
・クリニックモール祇園 徒歩13分
・武田山医院 徒歩6分
・山本第五公園 徒歩10分
物件概要
| 名称 | 土地情報 |山本9丁目 |
|---|---|
| 所在地 | 広島県広島市安佐南区山本9丁目755番他 |
| 交通 | 広島交通「南下安」バス停 徒歩12分 |
| 敷地面積 | 130.34㎡ |
| 土地価格 | 20,100,000円 |
| 販売区画 | 1区画 |
| 地目 | 宅地 |
| 用途地域 | 第一種低層住居専用地域 |
| 建ぺい率 | 50% |
| 容積率 | 100% |
| 現状 | 更地 |
| 道路 | 6m、アスファルト舗装 |
| 設備 | 公共水道、公共下水、中国電力、プロパンガス |
| 備考 | 販売中 |
| 取引形態 | 売主 |
| 売主・仲介・施工 | 売主・施工:(株)トータテハウジング 広島市中区千田町2丁目5番44号 国土交通大臣(特-5)第20228号 広島県知事(12)第4978号 |
※この土地は土地売買契約締結後3ヶ月以内に、株式会社トータテハウジングと建築請負契約を締結することを条件に販売します。期限内に住宅建築をしない事が確定した時、または住宅請負契約が成立しなかった場合は土地売買契約は白紙となり受領した金額は全額お返しします。(契約書に添付した印紙を除く)
見学予約について
※この掲載情報は予告なく変更となる場合がございます。
| 初回WEB来場予約の特典 | Web来場予約&Webアンケート回答後のご来場で、Amazonギフトカード3,000円分プレゼント! Web予約は何度でも可能ですが、特典は1回限りとさせていただきます。 スマートフォンで受信可能なメールアドレスをご入力ください。 ㈱トータテハウジング主催キャンペーンです。 Amazon、Amazon.co.jp およびそれらのロゴは、Amazon.com, Inc. またはその関連会社の商標です。 |
|---|---|
| 来場予約時の注意事項 | ・2日前までにお申し込みください。 ・2日以内のご予約の場合は、下記お電話番号までお問合せください。 ・ご予約いただいてもお時間の調整をお願いする場合がございます。 |
| お電話でのご予約 / お問い合わせ |
TEL:0120-338-768 アスタ展示場 定休日:水曜日、木曜日 営業時間:10:00~18:00 |
更新日:2026年05月27日
