カタログ
請求
モデルハウス
を見る
REAL ESTATE

分譲住宅

【先行販売】セントラルシティこころI5-2分譲

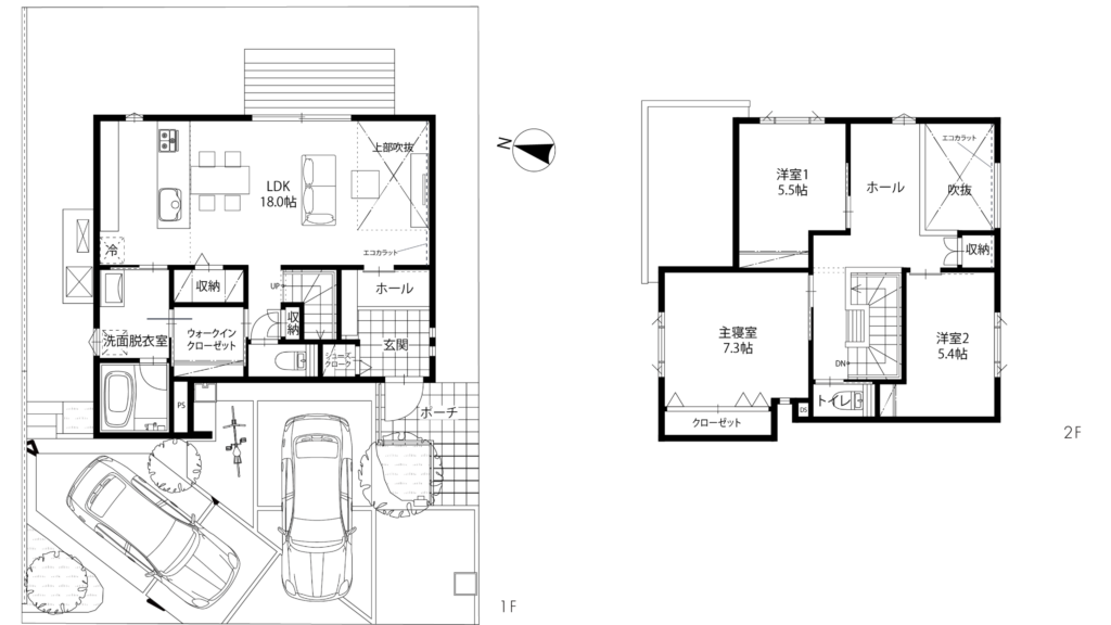
floor plan

家事ラク動線と吹き抜けが叶える、ゆとりある住まい
吹抜けから光が差し込み、心地よい明るさと開放感のあるリビング
リビングのアクセントにエコカラットを採用。日々の快適さと上質な雰囲気を両立。

Features

information

 

ACCESS

広島市立石内北小学校まで290m 徒歩約4分
セブンイレブン広島セントラルシティ店まで500m 徒歩約5分
フレスポ西風新都店まで1100m 徒歩約15分
こころ南公園まで550m 徒歩約7分
西風新都ゆめビル(クリニック)まで1100m 徒歩15分
広島市立大塚中学校まで1400m 徒歩約20分

物件概要

名称 セントラルシティこころI5-2
所在地 広島県広島市佐伯区石内北三丁目5011-21
交通 石内北小学校前バス停 徒歩3分(広電バス) 260m
敷地面積 167.84㎡
建物面積 105.35㎡(建築確認表示)
間取り 3LDK+ウォークインクローゼット
建物構造 木造2階建て
完成月 2026年8月予定
引渡予定 相談
販売戸数 1戸
販売価格 4,480万円
セットバック 無し
地目 宅地
用途地域 第一種低層住居専用地域
建ぺい率 50%
容積率 100%
設備 中国電力(オール電化住宅)、公共上下水
備考 外構付き、長期優良住宅、オール樹脂サッシ、全熱交換型換気、浴室乾燥暖房機、オール電化、スマートキー、食器洗浄機乾燥機、TVモニター付きインターホン、吹抜け、エコカラット、ウッドデッキ
道路 西側6.0m
取引形態 売主
売主・仲介・施工 (株)トータテハウジング
広島市中区千田町2丁目5番44号
国土交通大臣(特-5)第20228号
広島県知事(12)第4978号

西広島開発(株)
広島市中区国泰寺町2丁目4番7号
広島県知事(14)第3269号

建築確認番号 第HP16-4118014号
見学予約について ※この掲載情報は予告なく変更となる場合がございます。
初回WEB来場予約の特典 Web来場予約&Webアンケート回答後のご来場で、Amazonギフトカード3,000円分プレゼント!
Web予約は何度でも可能ですが、特典は1回限りとさせていただきます。
スマートフォンで受信可能なメールアドレスをご入力ください。
㈱トータテハウジング主催キャンペーンです。
Amazon、Amazon.co.jp およびそれらのロゴは、Amazon.com, Inc. またはその関連会社の商標です。
来場予約時の注意事項 ・2日前までにお申し込みください。
・2日以内のご予約の場合は、下記お電話番号までお問合せください。
・ご予約いただいてもお時間の調整をお願いする場合がございます。
お電話でのご予約 /
お問い合わせ
TEL:0120-122-435
セントラルシティこころ センターハウス
定休日:水曜・木曜
営業時間:10:00~17:00
更新日:2026年04月20日

広島県で注文住宅をお考えの方は
お気軽にお問い合わせください。

お電話でのお問い合わせはこちら
082-247-3133
定休日:水曜・木曜 営業時間:10:00~17:00