
【先行販売】セントラルシティこころI5-1分譲
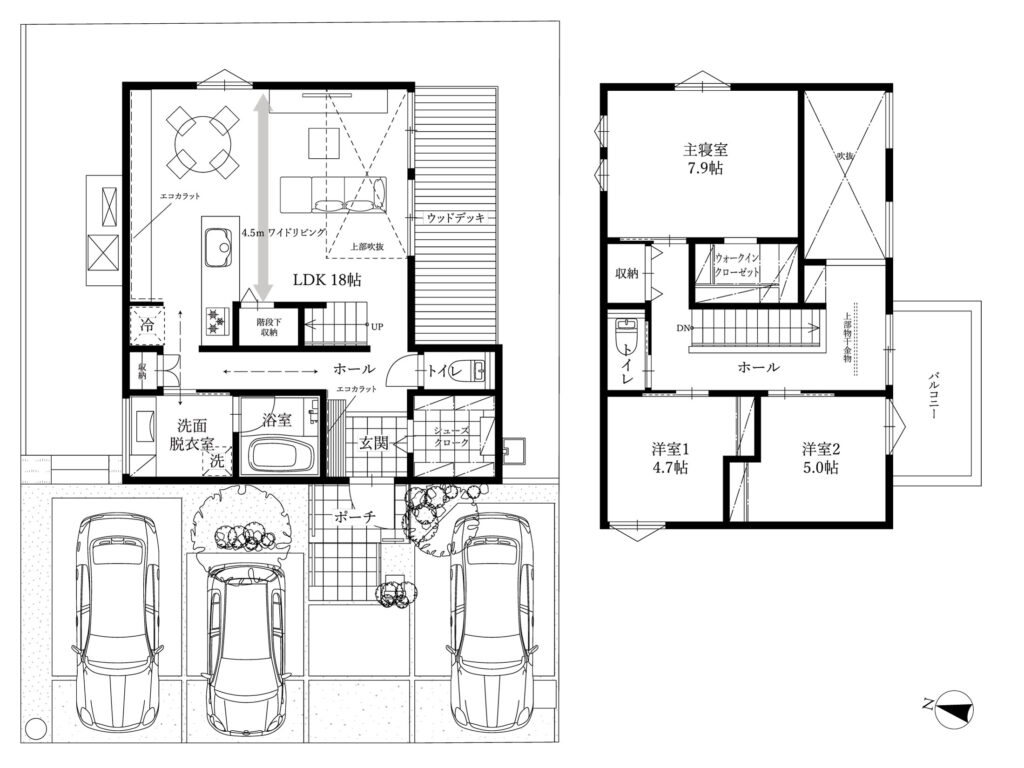
floor plan
ACCESS
物件概要
| 名称 | セントラルシティこころI5-1 |
|---|---|
| 所在地 | 広島県広島市佐伯区石内北三丁目5011-20 |
| 交通 | 石内北小学校前バス停 徒歩3分(広電バス) 260m |
| 敷地面積 | 168.27㎡ |
| 建物面積 | 104.18㎡(建築確認表示) |
| 間取り | 3LDK+フリースペース+シューズクローク+ウォークインクローゼット |
| 建物構造 | 木造2階建て |
| 完成月 | 2026年6月予定 |
| 引渡予定 | 相談 |
| 販売戸数 | 1戸 |
| 販売価格 | 4,850万円 |
| セットバック | 無し |
| 地目 | 宅地 |
| 用途地域 | 第一種低層住居専用地域 |
| 建ぺい率 | 50% |
| 容積率 | 100% |
| 設備 | 中国電力(オール電化住宅)、公共上下水 |
| 備考 | 外構付き、長期優良住宅、オール樹脂サッシ、全熱交換型換気、浴室乾燥暖房機、オール電化、スマートキー、食器洗浄機乾燥機、TVモニター付きインターホン、SI-COLLABORATION、、ワイドリビング、DJ構法、吹抜け、大容量カップボード、エコカラット、ウッドデッキ |
| 道路 | 西側6.0m |
| 取引形態 | 売主 |
| 売主・仲介・施工 | (株)トータテハウジング 広島市中区千田町2丁目5番44号 国土交通大臣(特-5)第20228号 広島県知事(12)第4978号 西広島開発(株) 広島市中区国泰寺町2丁目4番7号 広島県知事(14)第3269号 建築確認番号 第 25WHEC確建広00877 号 |
見学予約について
※この掲載情報は予告なく変更となる場合がございます。
| 初回WEB来場予約の特典 | Web来場予約&Webアンケート回答後のご来場で、Amazonギフトカード3,000円分プレゼント! Web予約は何度でも可能ですが、特典は1回限りとさせていただきます。 スマートフォンで受信可能なメールアドレスをご入力ください。 ㈱トータテハウジング主催キャンペーンです。 Amazon、Amazon.co.jp およびそれらのロゴは、Amazon.com, Inc. またはその関連会社の商標です。 |
|---|---|
| 来場予約時の注意事項 | ・2日前までにお申し込みください。 ・2日以内のご予約の場合は、下記お電話番号までお問合せください。 ・ご予約いただいてもお時間の調整をお願いする場合がございます。 |
| お電話でのご予約 / お問い合わせ |
TEL:0120-122-435 セントラルシティこころ センターハウス 定休日:水曜・木曜 営業時間:10:00~17:00 |
更新日:2026年04月06日




