カタログ
請求
モデルハウス
を見る
REAL ESTATE

分譲住宅

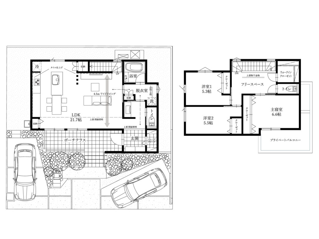
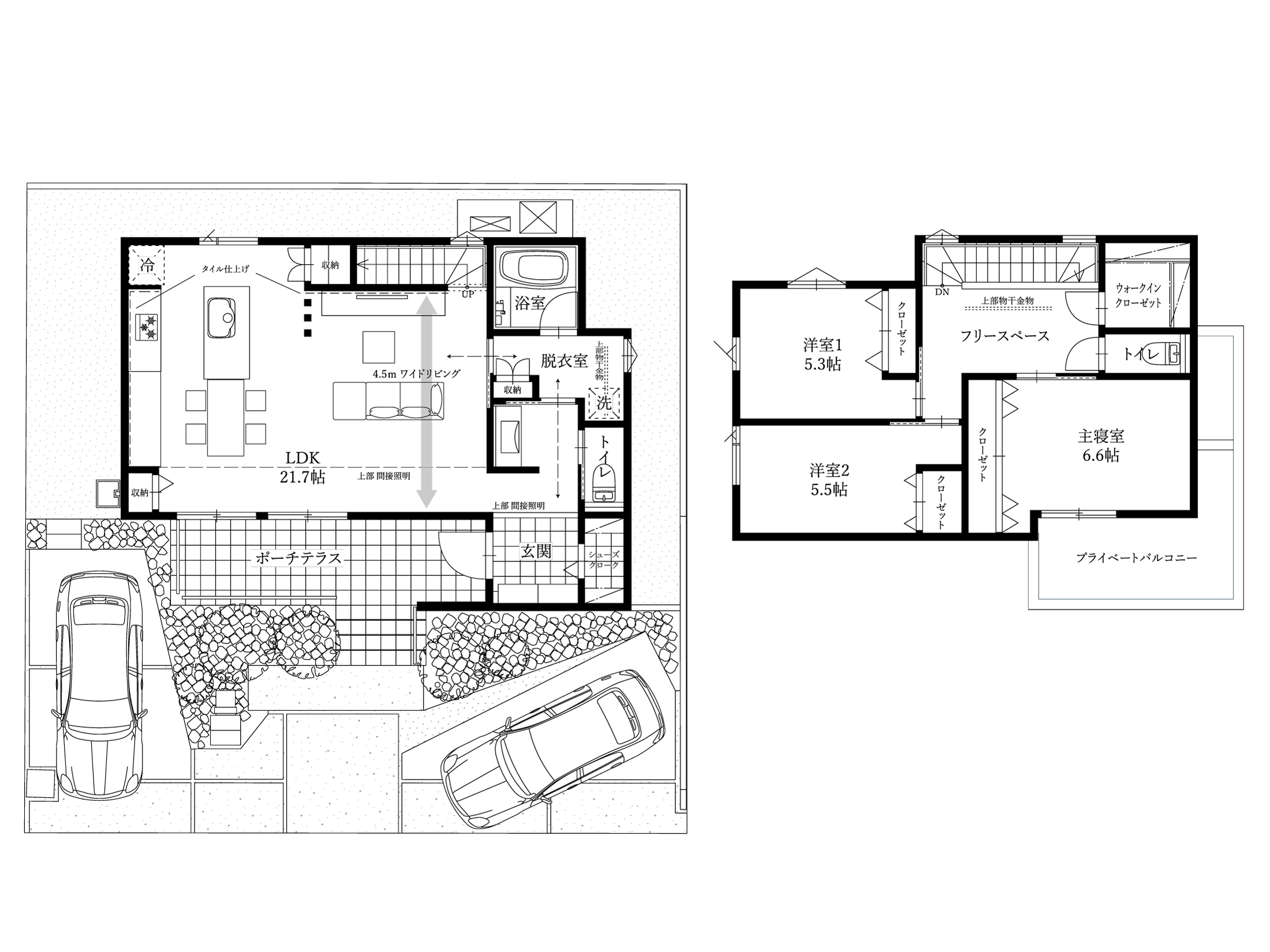
【先行販売】セントラルシティこころI5-9分譲

 

深く、穏やかに、心を満たす。

 

※掲載パースは図面を基に描き起こしたもので、実際とは異なる場合があります。予めご了承ください。

 

同様の建物を同じこころの街で土地から選んで注文住宅として叶える事もできます。

土地条件に合わせたプラン提案もワンストップでご相談ください。

 

広島県で注文住宅をお考えの方は
お気軽にお問い合わせください。

お電話でのお問い合わせはこちら
082-247-3133
定休日:水曜・木曜 営業時間:10:00~17:00